Nuestro edificio del Campus Tecnológico, ubicado en el Parque Empresarial de Elche, ha sido seleccionado para la candidatura de Elche para ser sede de la Agencia Espacial Española.
Esta edificación forma parte de un conjunto de edificios localizados en la ampliación del Parque Empresarial de Elche. El proyecto parte de la adjudicación pública por parte de Pimesa a FUSTER.
El edificio cuenta con cuatro plantas de oficinas, y una amplia recepción en la planta baja. Así mismo, se compone de dos plantas de sótano, que servirán de aparcamiento para los trabajadores y para los usuarios. El terreno tendrá un total de 3.000 m² construidos.
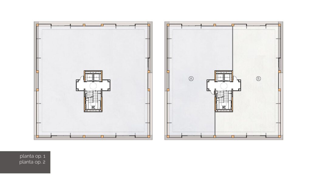
Una de las ventajas de este edificio es que es de planta diáfana. Se puede compartimentar cada planta según las necesidades de cada cliente. Además, en su diseño se han tenido en cuenta unos criterios de sostenibilidad para que el edificio tenga la menor huella de CO2 posible. La fachada está solucionada con lamas para tamizar la luz solar y así contribuir al ahorro energético.
