fuster Vivienda unifamiliar, Alzabares

Vivienda unifamiliar, Alzabares

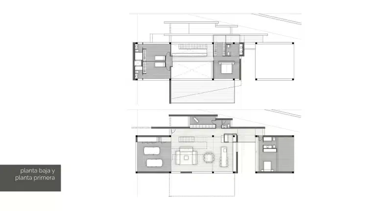
Esta vivienda unifamiliar está en Alzabares, un partida rural de Elche. Tiene dos plantas sobre rasante y piscina. Con 385 metros cuadrados construidos, tiene cuatro dormitorios.

Se caracteriza principalmente por sus planos inclinados. La vivienda posee varios niveles. En planta baja se encuentra la zona de estar, con un amplio salón. Además, hay un dormitorio separado de esta zona mediante un distribuidor.

La vivienda tiene dos entradas en la parte trasera. En la parte delantera, la fachada se abre con grandes ventanales a la zona de porche. La planta primera sobresale con un voladizo que proporciona sombra y la sensación de un porche recogido. Además, la fachada plegada intenta envolver un programa dinámico y flexible, con una voluntad de mirador al exterior que permite disfrutar del entorno, el campo de Elche.

Si te ha gustado este proyecto de vivienda unifamiliar Alzabares en Elche y deseas ver otro proyecto similar, haz clic aquí.