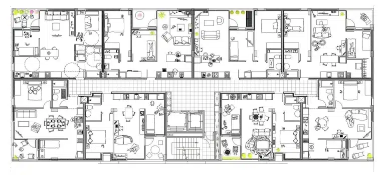
Propuesta para un edificio de viviendas en el barrio de San Antón de Elche, Alicante. Este bloque es el primero a construir de una actuación urbanística para renovar el barrio. El edificio ideado por FUSTER cuenta con 72 viviendas, distribuidas en nueve plantas sobre rasante.
El orden y la sencillez son las premisas fundamentales en la concepción del proyecto. El bloque recoge las terrazas, por lo que no hay cuerpos volados fuera del mismo. En fachada se propone la colocación de elementos que crean sombra, pero permitiendo la ventilación natural de las viviendas. Existen tres tipos básicos de vivienda, y uno adicional pensado para personas con discapacidad física y usuarios de sillas de ruedas.
Las viviendas son de dos dormitorios. Damos prioridad a la amplitud abriendo la cocina al salón y zona de estancia. Así, estas viviendas son cómodas y con estancias eficientes y equilibradas. Son espacios para ser habitados, con comodidad y calidez. Por ello, muchos de los dibujos que acompañan a la propuesta describen situaciones domésticas. Porque la arquitectura debe estar pensada para quien va a disfrutarla.
Si te ha gustado este edificio de viviendas en San Antón, Elche, puedes ver otro proyecto de edificios plurifamiliares haciendo clic aquí.









