El Marina Port, forma parte de un proyecto de carácter portuario que realizamos para el puerto de Mallorca. El proyecto desarrolla el diseño para la renovación de 3 edificios en el Puerto de Palma de Mallorca. Un módulo principal de servicios, otro módulo para el control de acceso y finalmente otro de gestión de residuos portuarios.
Las tres propuestas estudiadas, siguen pautas de diseño enfocadas en el mismo camino. El juego entre los materiales, el estuco blanco, el acero y el vidrio, consigue crear esa imagen contemporánea y moderna.
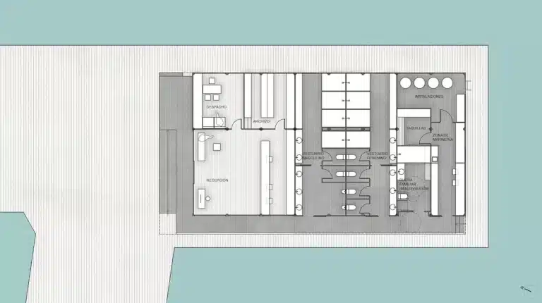
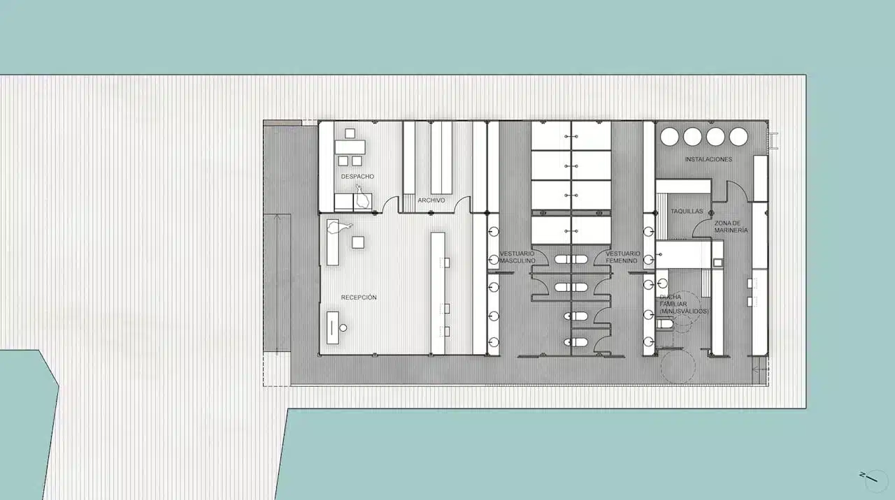
Se requería de una espacio en la entrada de este puerto deportivo, que sirviera como recepción del mismo. Además, debía tener una zona de despachos y archivo para uso interno. Así se diseñó el edificio proncipal.
Para apoyar a las actividades náuticas, el edificio Marina Port consta de vestuarios, taquillas, una zona de marinería y una estancia que pudiera albergar las instalaciones necesarias.
El volumen está compuesto por dos piezas sólidas que enmarca un frente de vidrio. La zona más privada que da servicio a las actividades marinas está protegida por lamas fijas de aluminio. El edificio está concebido para que parezca que se adentra en el mar y funciona como limitación entre éste y el puerto deportivo.
En Marina Port, Puerto de Mallorca, predominan los colores claros, todo se concibe en blancos, carpinterías gris claro y lamas de aluminio y formas rectas y puras. Por la noche la iluminación adquiere protagonismo enfatizando los volúmenes del edificio, poniendo en valor sus rasgos, su sencillez y rotundidad.









