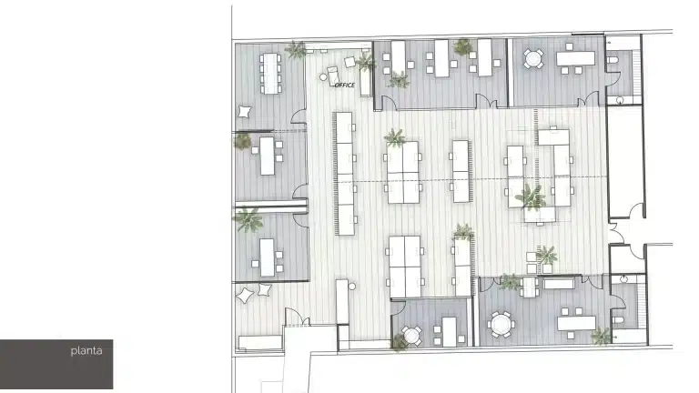
Este proyecto consiste en la reforma interior de las Oficinas Paredes, en Elche, Alicante. Paredes es una empresa de fabricación de calzado, donde tienen unas amplias oficinas.
Con casi 500 metros de superficie sólo de oficinas, en este proyecto predomina la funcionalidad. Las instalaciones cobran vital importancia: el espacio de trabajo tiene que ser cómodo, tener buena temperatura y estar bien iluminado. Además, si puede ser agradable y amable, tanto empleados como clientes van a disfrutar el espacio.
Nuestro departamento de ingeniería se coordinó con el equipo de arquitectura y diseño. FUSTER realizó todas las fases del proyecto, que se desarrolló de manera ágil.
Se propone la demolición de todos los elementos interiores: se realiza una distribución completamente nueva. Se apuesta por espacios diáfanos, con estructura vista y separación de espacios mediante elementos ligeros y semi opacos. Además, no llegan hasta el techo, lo que da sensación de amplitud.
En el interior, predominan las mamparas de vidrio y sistemas autoportantes de placas de yeso laminado para generar la nueva distribución. Así, otorgamos un aspecto moderno, funcional y diáfano.
Si te ha gustado este proyecto y deseas ver otro proyecto de oficinas, haz clic aquí.






