El proyecto Caprice Island en Santa Pola consiste en dos viviendas unifamiliares.
La parcela está situada en una posición privilegiada, a escasos metros del mar. Así, en este proyecto cobran importancia las visuales y tener grandes huecos en la fachada principal.
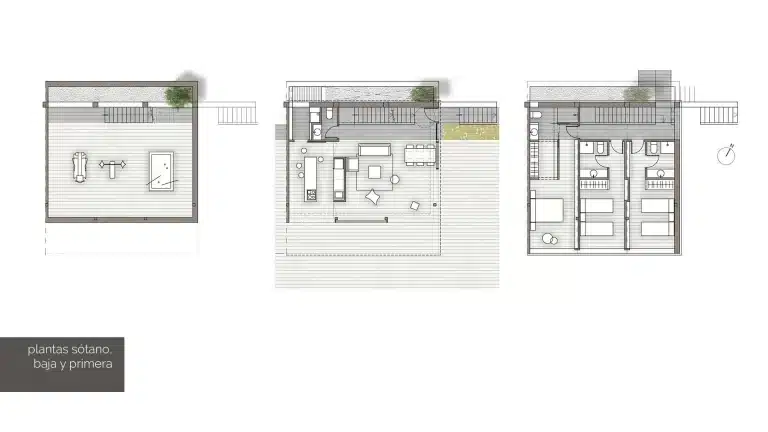
La vivienda se compone de un sótano para aparcamiento, semisótano, y dos plantas sobre rasante. La planta de arriba alberga la zona de noche de la vivienda y en la planta de abajo encontramos el salón, cocina y comedor, además de un aseo.
Se deciden que las dos viviendas unifamiliares sean idénticas. Así, ambas incorporan una gran piscina y un espacio de estancia en la parte frontal de la parcela.
Si te han gustado estas viviendas unifamiliares adosadas en Santa Pola, puedes consultar un proyecto similar haciendo clic aquí.






